About

Industries We Serve

• Vegetable Oil Refineries
• Petrochemical Industry
• Chemical Plants
• Offshore structures
• Food Industry
• Manufacturing Plants
• Warehouses
• Equipment Skids
• Utility Structures
• Water Treatment Plants
• Infrastructure Projects
• Cement Industry
• Solar Power Projects

HEAR Our Values

Health, Safety and Environment

We aim at designing an inherently safe structure reducing the possibility of hazards to as minimum as possible. We engineer structures so as not to cause any negative impact on environment and society but prove to be a boon for them.

Ethics

We uncompromisingly conduct our business with integrity, dignity and with a clear and open transaction process respecting and abiding by all the relevant rules and regulations. We always intend to win trust and confidence of clients, colleagues, and society as a whole through our fair and honest business policies and strategies.

Accountability

We engineer structures without compromising on the provisions set forth in the codes. Our passion, commitment, expertise and hard work help in maintaining quality in our engineering. We own full responsibility for the services offered by us.

Relationships

We are in a continuous process of building robust and long term relations with our clients and customers through respect and trust by serving to their utmost satisfaction. Friendly and cooperative work environment helps to “Unite” our colleagues as “Structural Unite Family”.

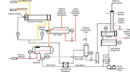
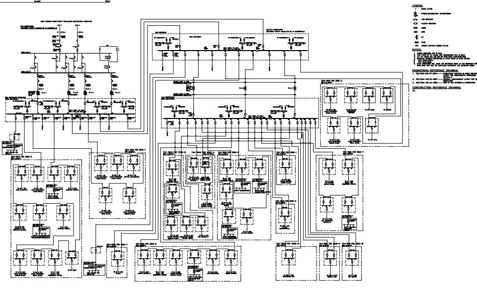
Services

Alternate Text Process Architectural Civil & Structural Vessel Piping Electrical Multidisciplinary

Projects

Careers

Contact